Eventos
MSM Une
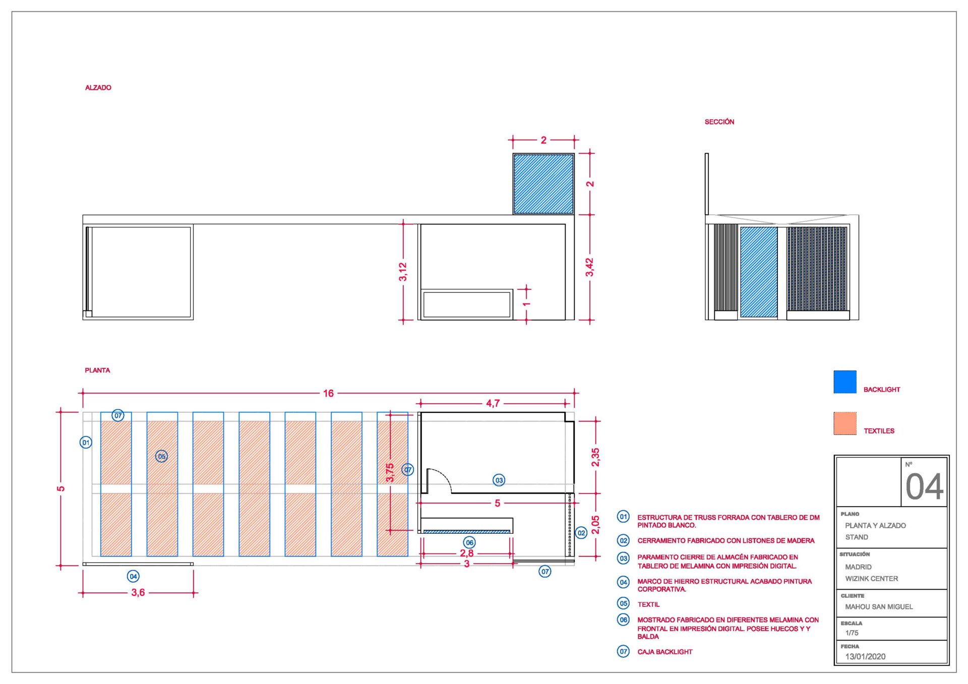
Diseño y distribución de espacios.
Diseño de escenografía.
Diseño de Stand área coctel.
-
Ciudad
Madrid
-
Personas
1200
-
Fecha
Enero 2020
-
Para
Globally NewLink
Diseño y distribución de espacios.
Diseño de escenografía.
Diseño de Stand área coctel.
Madrid
1200
Enero 2020
Globally NewLink